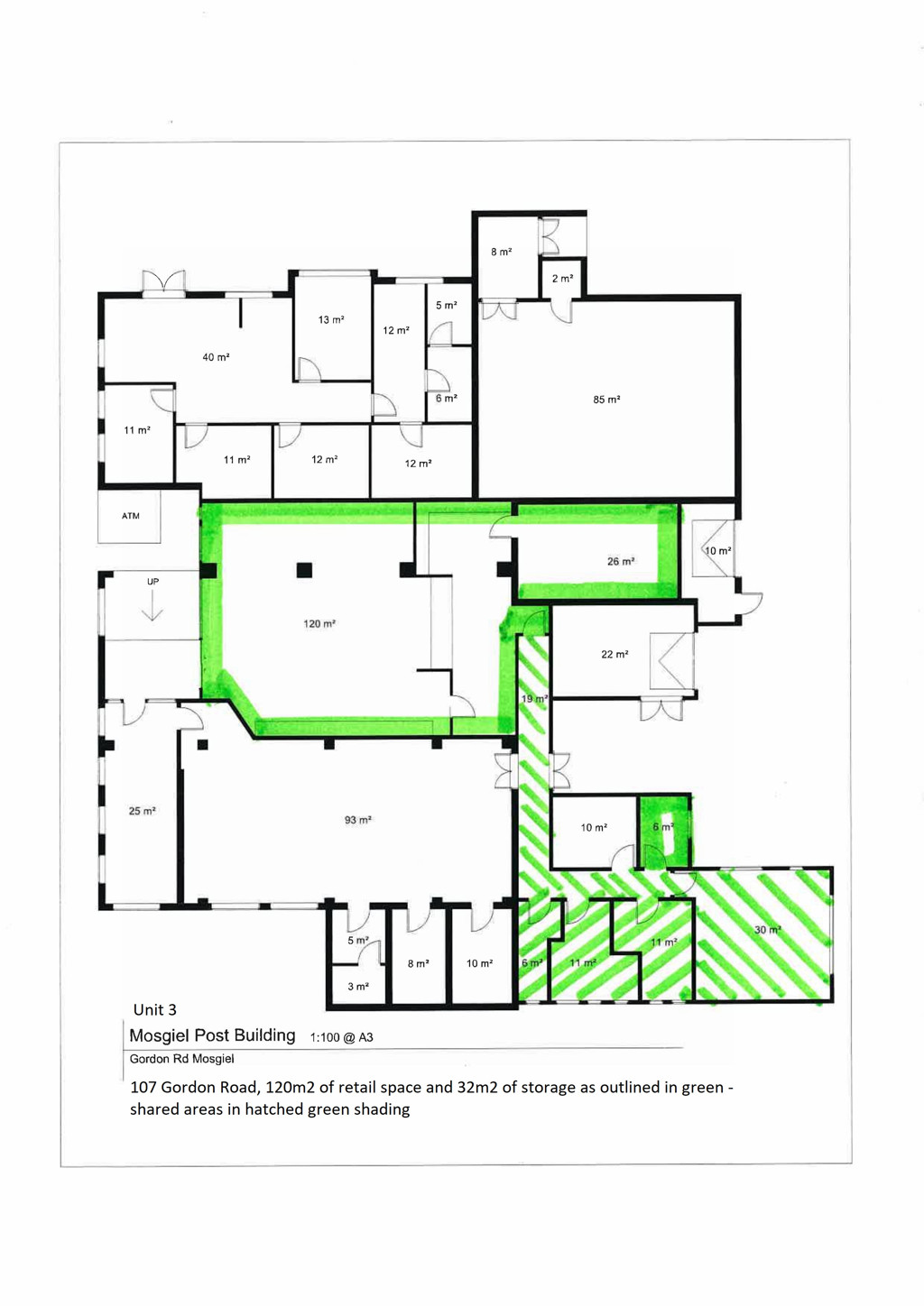
107Unit 3 Gordon Road, Mosgiel

Web ID: COMMB1645

LEASED

Retail/Offices and Storage Mosgiel 152m

A large retail/service retail or office space of 120m2 is now available for lease along with a large storage area of 32m2 fronting Gordon Road, Mosgiel.
Accessed from Gordon Road the open plan area includes a meeting room, as well as access to shared bathroom and kitchen facilities. Would suit a retail operation or a service-based entity looking for a presence in Mosgiel. Rear parking is available by negotiation. Formerly NZ Post front counter operation and storage, the large send boxes at the frontal area have been decommissioned and are being removed - asking rental $28,800 plus a share of opex plus GST. Enquire now to view.

Property Details

Approximate Floor Area
152m2

Property Type

You Might Also Like...