19 Strode Street, Halfway Bush

3 BED1 BATH2 CAR GARAGING

Web ID: MO2069

SOLD

No need to buy art - it is built in!

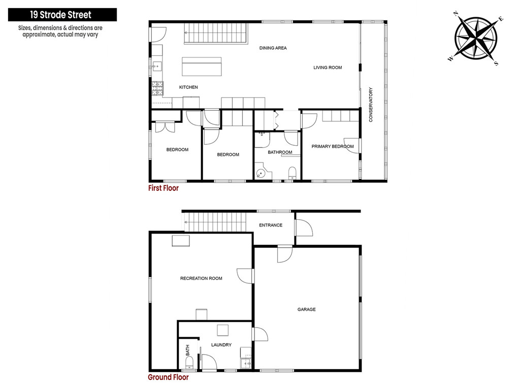
Welcome to your dream home in Dunedin, where stunning views of the city, harbour, and beyond await you. This spacious 200m2 residence features a light-filled, open-plan living area that invites natural light warmed by a heat pump for year-round comfort. The modern, well-appointed kitchen is a chef's delight, providing the perfect space for culinary creativity and family gatherings. With three generously sized double bedrooms and a family bathroom to accommodate the needs of your household, there's ample room for relaxation and rest. A separate toilet off the hobbies room adds convenience for families and guests alike.

Step into the beautiful conservatory, an ideal spot to soak in the breathtaking vistas while enjoying your morning coffee or hosting friends. The property boasts double garaging with internal access, ensuring convenience and security, plus off-street parking for guests.

For those with hobbies or a passion for entertaining, the large hobbies room offers endless possibilities. Picture a space where creativity flourishes or where memorable gatherings take place. Nestled on an expansive 811m2 section, the outdoor areas promise privacy and charm, perfect for summer barbecues and celebrations under the sun.

Don't miss your opportunity to own this remarkable home with its stunning views and modern comforts. Act quickly, as properties like this don't last long on the market. Your new lifestyle in Dunedin awaits!

Property Details

Approximate Floor Area
200m2

Approximate Land Area
811m2

Rateable Value
$700,000

Property Type
House

You Might Also Like...