4/217 Oxford Street, South Dunedin

2 BED1 BATH1 CAR GARAGINGOFF-STREET PARKING

Web ID: DO12122

Save Property

Deadline Sale - closing 4pm Wednesday 29th October

Low maintenance living!

Buyers over $400,000 should inspect.

Deadline Sale - closing 4pm Wednesday 29th October (prior unconditional offers considered).

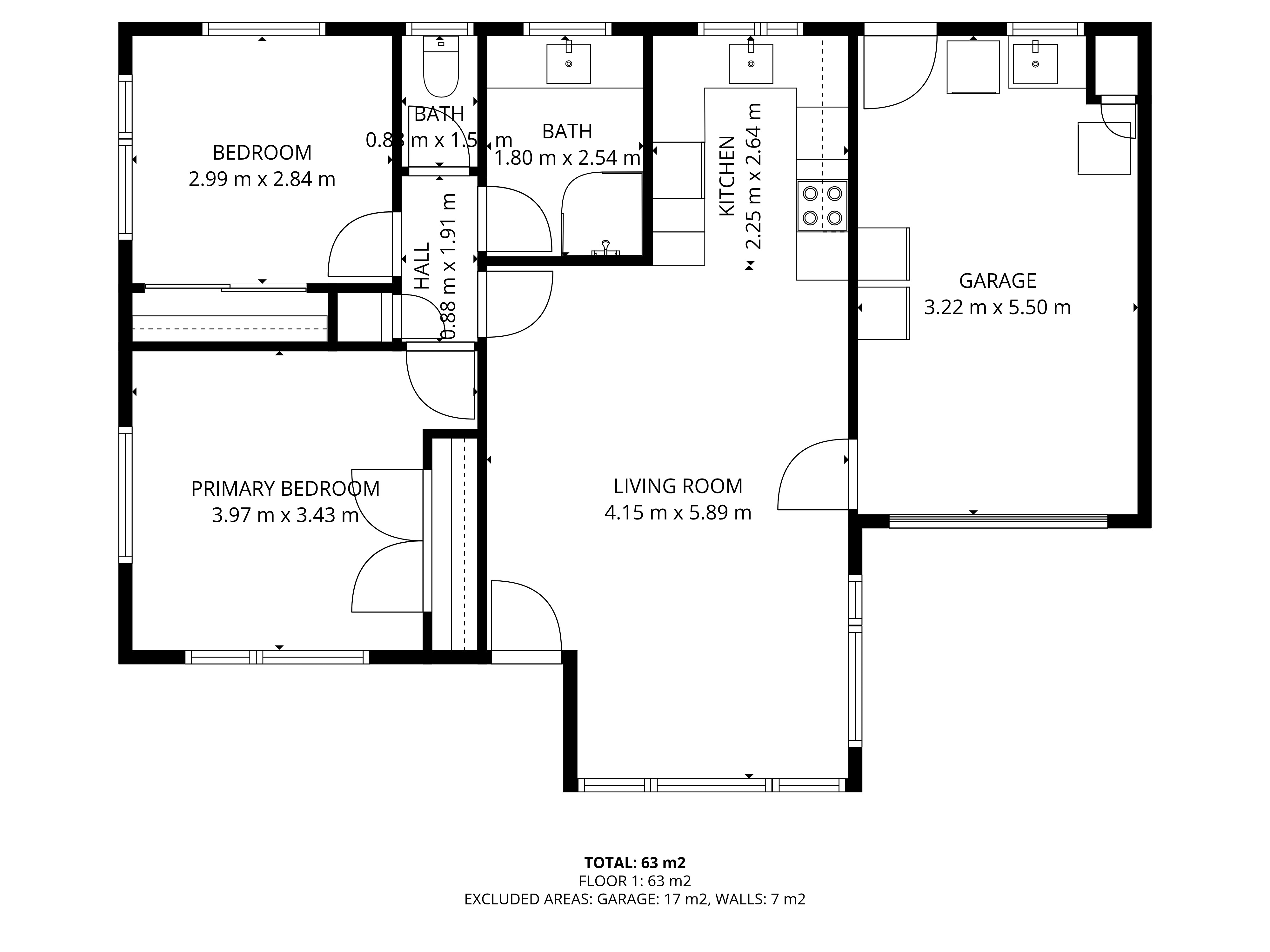
Welcome to this purpose-built 1990's townhouse, ideally positioned in the heart of South Dunedin and a short walk from the South Dunedin Shopping Centre. Tucked privately at the end of the driveway, this home offers both comfort and convenience.

Step inside and you'll find two generously sized double bedrooms, each with built-in wardrobes, an updated bathroom, and a spacious open plan living area. The layout flows seamlessly to the kitchen and provides internal access to the laundry and single garage, complete with an automatic door for ease of use.

The current owner has tastefully modernised the property with fresh paint, new carpet, and updated window dressings. Outdoors, a sundrenched, low maintenance courtyard provides the perfect spot to relax and unwind.

Whether you're looking to downsize, secure a town base, or add a solid investment to your portfolio, this property is sure to impress.

Don't miss your chance - properties like this are always in high demand.

Property Details

Inspection Details

Monday 27th October
1:00pm - 1:30pm
calendar

Approximate Floor Area
86m2

Rateable Value
$430,000

Property Type
House

You Might Also Like...