8 Dalry Street, Mornington

3 BED1 BATH1 CAR GARAGINGOFF-STREET PARKING

Web ID: DO12110

Save Property

$449,000

Charming 3-Bedroom Home in the Heart of Mornington

If you've been searching for a home that's full of charm, warmth, and sunshine - this delightful Mornington property is sure to win you over.

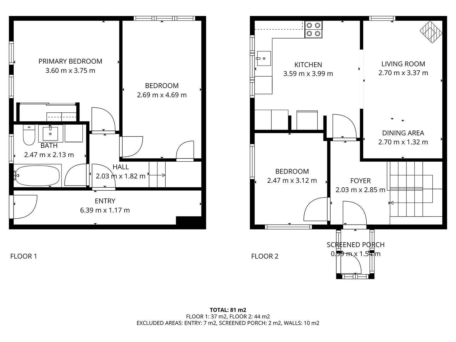
Step inside and you'll find a beautifully presented 3-bedroom home, full of character and comfort. The living spaces are light and welcoming, making the most of the sun - perfect for relaxing or entertaining friends and family. The modern kitchen offers functionality and style, while the three bedrooms provide plenty of space for families, first-home buyers, or those looking to downsize without compromise.

Outside, you'll love the fenced paved private area and lower down an established garden, offering room to enjoy the outdoors without too much upkeep. A single garage adds extra convenience and storage. And has off street parking for 1 vehicle. Located in popular Mornington, with local shops, cafes, schools, and transport - everything you need is located close by.

Key Features:
• Three bedrooms
• living area with great flow
• Modern, tidy kitchen and bathroom
• Single garage plus off-street parking
• Private, easy-care section
• Sought-after Mornington location

This home truly ticks all the boxes - cute, sunny, and move-in ready.

Don't miss out! Contact Josh Clark on 021 267 1322 today to arrange a viewing or check the open home times.

Property Details

Inspection Details

Saturday 29th November
11:45am - 12:15pm
calendar

Approximate Floor Area
80m2

Approximate Land Area
763m2

Rateable Value
$415,000

Property Type
House

You Might Also Like...