1 Statham Street, Brockville

3 BED1 BATH

Web ID: MO2082

SOLD

Sunny Solid Brick Family Home

1 Statham Street, Brockville offers loads of potential to enhance and add further value, just a great opportunity for the next owner to bring their vision and skill to take this much-loved solid 1960s brick home to the next level and make it their own.

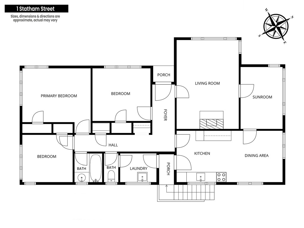
Inside features three generous bedrooms, all with inbuilt wardrobes, a sunroom or fourth bedroom/study or office offering plenty of space for everyone, nearby the functional bathroom includes shower, bath, vanity and extractor fan.
Down the hallway there are two storage cupboards, a separate toilet and a good-sized laundry.
The living room provides a comfortable space, being heated by the Metro wood burner, with the spacious kitchen/dining area offering plenty of cupboard space and featuring outstanding expansive views over Dunedin and beyond.
Downstairs this home benefits by basement storage - just the space for the family bikes, tools or that camping gear.

Outside the large 792m2 section is fenced with garden shed and provides plenty of off-street parking and would be a great space to build your garage.

This home is a smart choice for first home buyers, investors or anyone looking to enhance and add value.

• Solid brick with loads of potential
• Fenced 792m2 section
• Sun and city views
• Handy city location

Property Details

Approximate Floor Area
120m2

Approximate Land Area
792m2

Rateable Value
$530,000

Property Type
House

You Might Also Like...