21 Carlyle Road, Mosgiel

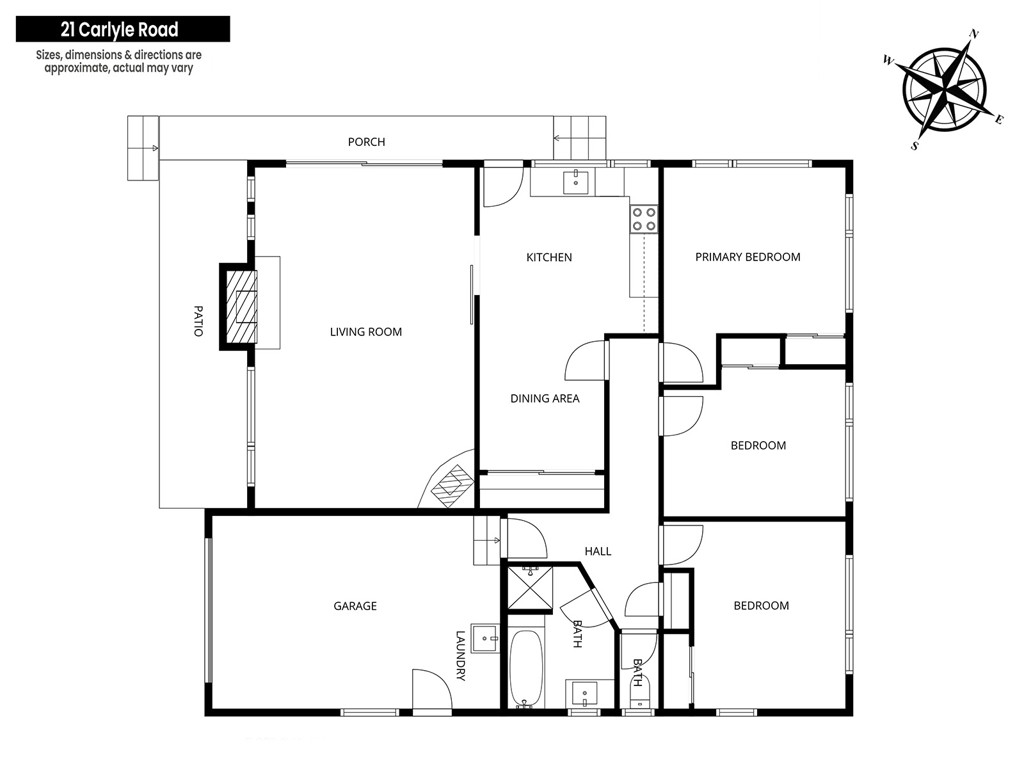
3 BED1 BATH1 CAR GARAGING

Web ID: MO2080

SOLD

One Owner Family Home

This sunny 1970's three-bedroom solid brick home is ready for its next chapter.

The generous sized kitchen and dining area flows into the lounge, heated by a heatpump and wood fire, which creates a welcoming space for everyday living.

The bedrooms are all a good size with storage.

Step outside to a large backyard, perfect for family time or entertaining, and enjoy the convenience of a garage with internal access.

All of this in an excellent location - time for new beginnings for this property.

• Solid brick family home, time for a make over
• Large open plan kitchen and living areas
• Good sized bedrooms
• Garage with internal access
• Excellent section, excellent location

Property Details

Approximate Floor Area
150m2

Approximate Land Area
644m2

Rateable Value
$620,000

Property Type
House

You Might Also Like...