28 Paterson Road, Mosgiel

3 BED1 BATH1 CAR GARAGING

Web ID: MO2091

SOLD

Classic Solid Brick Home

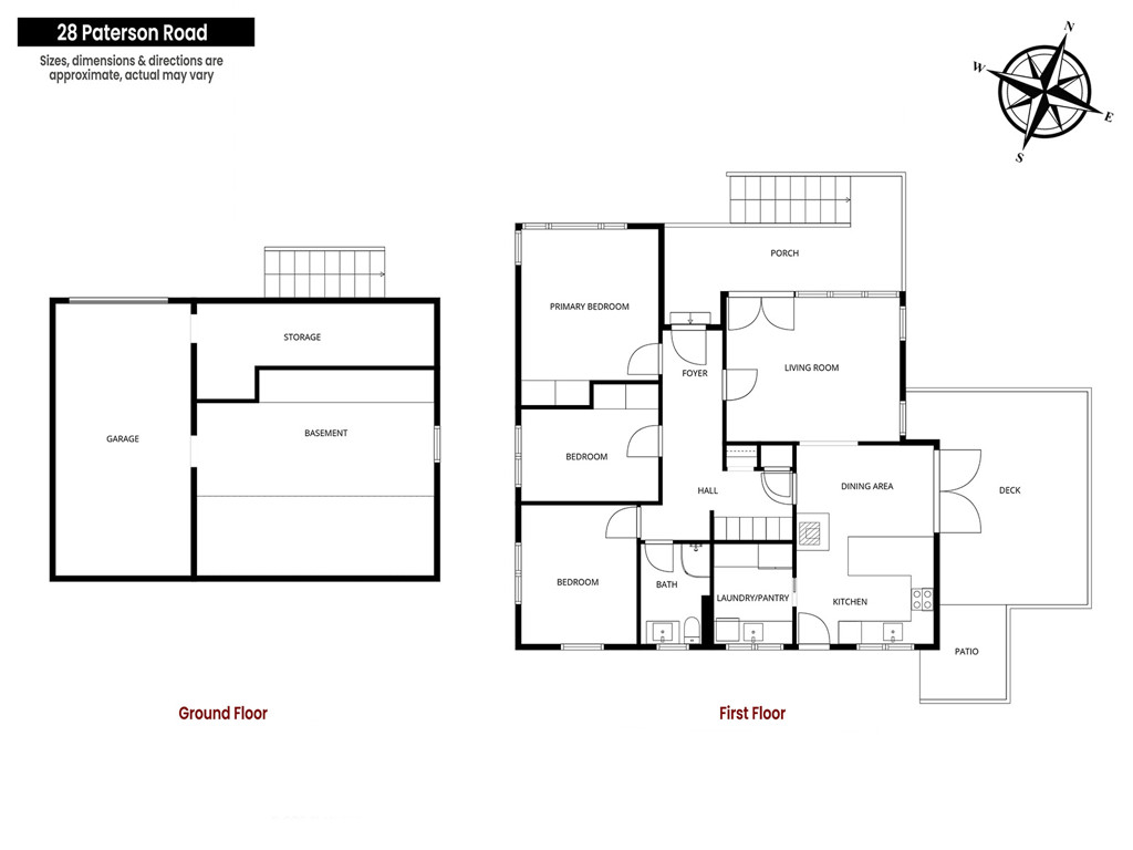
This solid 1950's brick three-bedroom home is perfectly elevated to capture all-day sun and stunning views. Designed to maximise natural light, it features a sun-drenched sundeck off the kitchen - ideal for enjoying your morning coffee - while large doors off the lounge open wide to welcome the afternoon sun and scenic outlook.

Inside, you'll find a modern interior, including an updated kitchen and stylish bathroom, offering comfort and contemporary appeal throughout.
The home is well-equipped for year-round comfort with excellent heating options, including a wood burner and two heat pumps.

Practical features add to the appeal, including:
• A handy storage shed
• Basement garage with automatic door opener
• Generous section with space for family living
• Conveniently located on the outskirts of Mosgiel with a school bus stop handy, making transport to local schools easy and stress-free.

This warm, sunny, and well-appointed home offers comfort, views, and convenience - a fantastic opportunity not to be missed.

• Warm and welcoming home elevated for both sun and views
• Modern interior, updated kitchen and bathroom
• Sundeck off the kitchen area as well as large doors opening to catch the afternoon sun
• Basement garaging, family sized section

Property Details

Approximate Floor Area
110m2

Approximate Land Area
959m2

Rateable Value
$570,000

Property Type
House

You Might Also Like...