61A Malvern Street, Woodhaugh

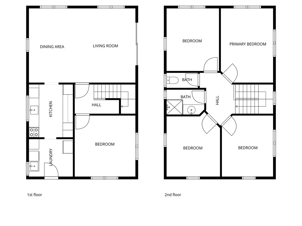
5 BED1 BATH

Web ID: IN12234

SOLD

Low maintenance investment

Sunny, modern, this well-maintained two-level purpose-built student flat (circa 1998) features classic board and batten construction and offers an excellent investment opportunity.

The property comprises five generously sized bedrooms, each complete with built-in desks, a tidy bathroom with separate toilet, and a functional galley-style kitchen that flows seamlessly through to the laundry. The spacious open-plan dining and living area opens out to an outdoor space, creating an easy indoor-outdoor connection.

Comfort is assured with a heat pump in the living area to keep the home warm during the cooler months, and the property is fully Healthy Homes compliant. Ample off-street parking adds further convenience.

Currently tenanted on a fixed-term lease at $800 per week until the 31st December 2026, this is a ready-made investment in a high-demand location. Within walking distance to the University of Otago and close to the popular Woodhaugh Gardens.

A LIM report and rental appraisal are available on request. 61 Malvern Street is also for sale. Purchase one or secure both - flexible options to suit your investment strategy.

Property Details

Approximate Floor Area
133m2

Rateable Value
$570,000

Property Type
House

You Might Also Like...