6/432 Great King Street, North Dunedin

1 BED1 BATH

Web ID: IN12192

SOLD

City apartment - study, work or invest!

This stunning, fully furnished one-bedroom apartment on Great King Street combines style, convenience, and low-maintenance living in a sought-after location. Its modern design and thoughtful layout have consistently drawn interest from tenants, owner-occupiers, and anyone looking for a turnkey lock-and-leave home.

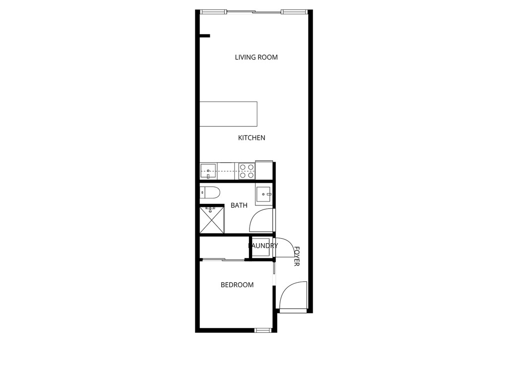
The kitchen boasts premium appliances and opens effortlessly into a sun-drenched, open-plan living space. Slide back the double doors onto a north-facing courtyard that extends the living space. The bedroom is modest yet elegant, complete with a built-in wardrobe, and is paired with a chic, contemporary bathroom. Each apartment also enjoys secure, separate storage, offering both practical rubbish disposal and space for larger items.

Conveniently located, you're just minutes on foot from the university library, lecture theatres, hospital, and all essential campus facilities, making this an unbeatable base for students, professionals, or anyone seeking a convenient city lifestyle.

Currently rented at $490 per week until 31st December 2026, with scope to increase. This apartment is a smart, low-maintenance investment, ideal for families planning ahead for children studying in Dunedin, or for anyone wanting a stylish lock-and-leave city retreat.

Get in touch today for your full information pack.

Property Details

Approximate Floor Area
44m2

Rateable Value
$470,000

Property Type
Apartment

You Might Also Like...