939 Cumberland Street, North Dunedin

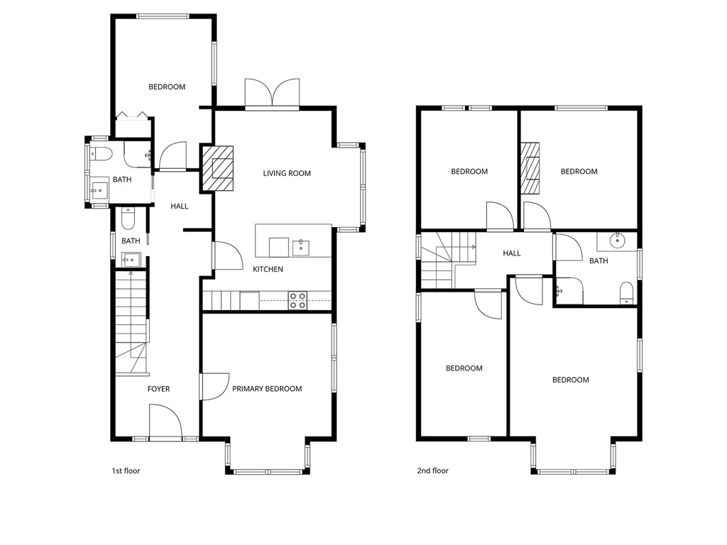
6 BED2 BATH

Web ID: IN12205

SOLD

Spacious six-bedroom with upside

Positioned in a consistently sought-after location just moments from campus and within easy reach of Gardens Shopping Centre, this substantial property presents a compelling opportunity for investors seeking strong returns with future upside. Offering generous accommodation, practical layout, and ongoing rental security, it is a proven performer in a high-demand area.

The property features a well-considered open-plan kitchen and living area, thoughtfully updated over time and fitted with a heat pump. Seamless indoor-outdoor flow connects the living space to a flat, sun-filled backyard - an attractive feature for tenants. On the lower level, two bedrooms are serviced by a full bathroom, while upstairs, four additional bedrooms are complemented by a second bathroom, creating a highly functional layout well suited to larger households and maximising rental potential. Renovations carried out over the years have maintained the property's appeal and liveability, while off-street parking adds further practicality in this popular location.

Importantly, there is clear potential to add further value, with scope to create an additional bedroom on site (subject to any required consents), offering an opportunity to enhance income in the future.

Currently returning $1,320 per week through to 31st December 2026, the property is underpinned by a fixed-term tenancy that provides certainty in a consistently sought-after rental location. With its established performance and scope for further enhancement, this is an opportunity that invites consideration from investors focused on both stability and future potential.

Property Details

Approximate Floor Area
167m2

Approximate Land Area
354m2

Rateable Value
$755,000

Property Type
House

You Might Also Like...