22 Tapley Close, Halfway Bush

3 BED2 BATH2 CAR GARAGING

Web ID: MO2100

Save Property

Negotiable over $999,000

Can't Beat Brand New!!!!

Tucked away in a private cul-de-sac within a quality new subdivision, this beautifully built home offers the perfect balance of modern living and peaceful surroundings, all just minutes from the city. Surrounded by established, landscaped gardens that line the subdivision, the setting feels welcoming and refined from the moment you arrive.

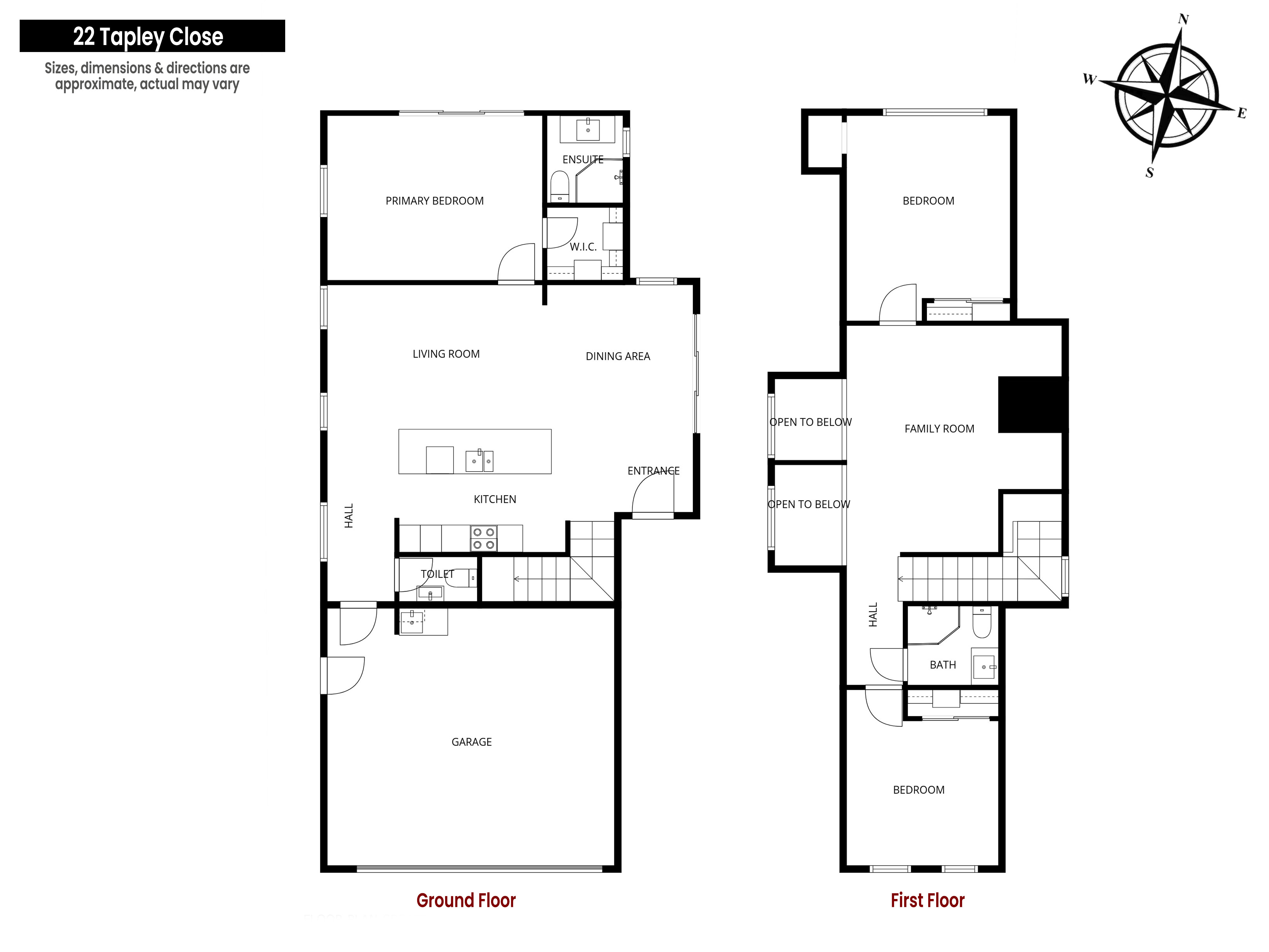
Designed with style and comfort in mind, the home showcases a quality build with the latest colours and finishes, complemented by high-end appliances throughout. The ground level is centred around a spacious open plan kitchen, dining and living area, where stacker doors open seamlessly to a private, sun-soaked outdoor space, perfect for entertaining or relaxing in complete privacy while taking in the stunning mix of city and rural views. Year-round comfort is assured with two heat pumps providing efficient heating and cooling, and the convenience of a separate toilet downstairs adds to the thoughtful layout.

The master bedroom is conveniently located on the lower level and offers a peaceful retreat, complete with a walk-in robe, well-appointed ensuite, and doors opening onto a private outdoor area. Upstairs, two generously sized bedrooms with built-in wardrobes are complemented by a modern family bathroom and an additional living area, ideal for teenagers or guests wanting their own space.

A double internal access garage provides practicality and security, with the added benefit of off-street parking. The landscaped section is easy care yet beautifully presented, enhancing the overall appeal of this impressive home.

Set within a stunning subdivision and offering a lifestyle of ease, comfort and style, this is a fantastic opportunity to secure a brand-new home that is ready for you to move in and enjoy right away.

Property Details

Inspection Details

Sunday 26th April
12:00pm - 12:30pm
calendar
Monday 27th April
12:00pm - 12:30pm
calendar

Approximate Floor Area
183m2

Approximate Land Area
462m2

Property Type
House

You Might Also Like...