23B Mure Street, Mosgiel

2 BED1 BATH1 CAR GARAGING

Web ID: DO12270

Save Property

$579,000

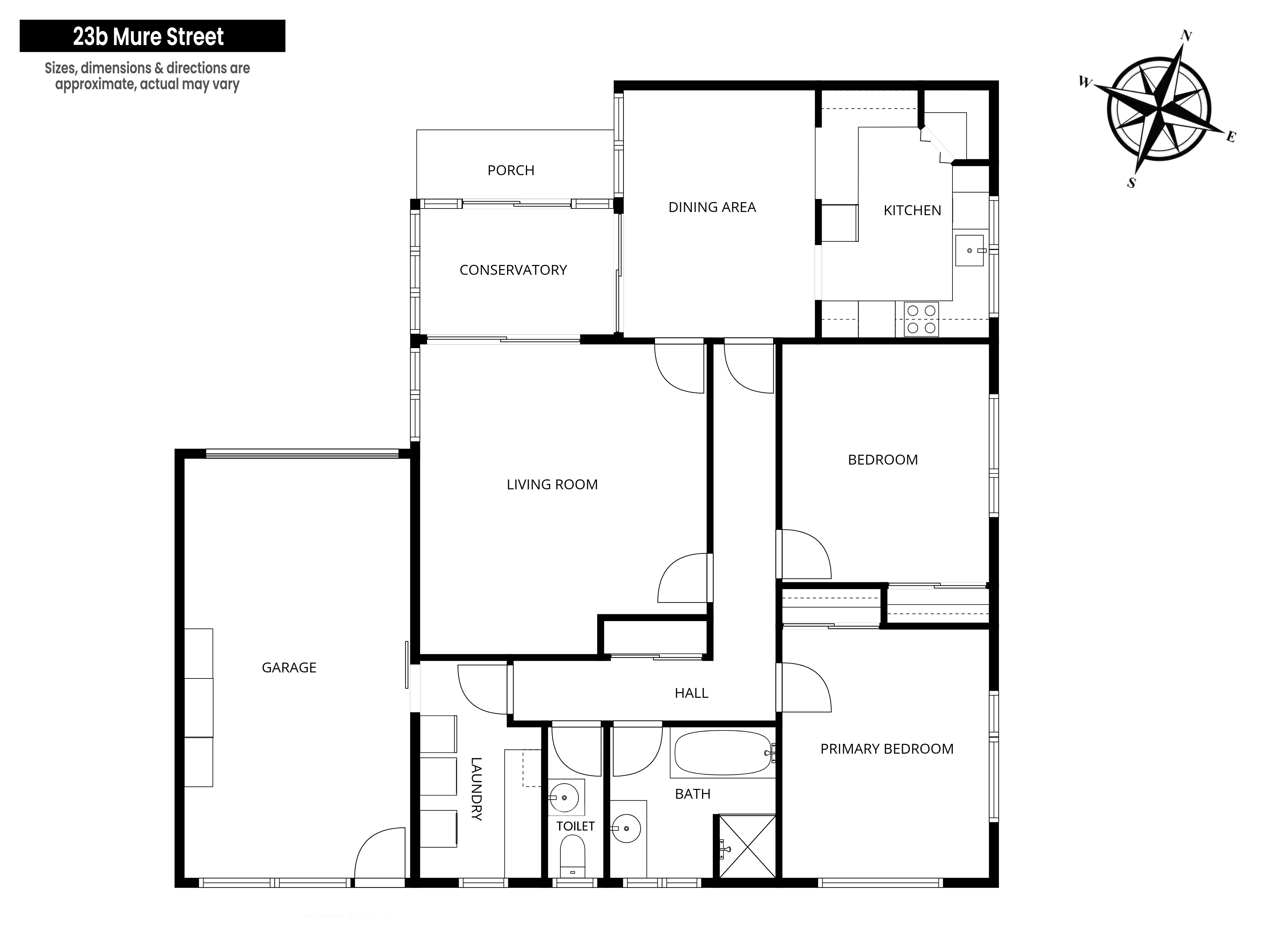
Sunny, spacious and practical living

Tucked away in a quiet setting, back from the street, this well-presented two-bedroom unit offers a comfortable, low-maintenance lifestyle - ideal for downsizers seeking ease without sacrificing space.

Step inside to a generous, light-filled living room, where large windows create a warm and inviting atmosphere, with plenty of room to relax or entertain. The layout flows through to a dedicated dining area and into a well-kept kitchen, featuring ample storage, and a pleasant outlook to the garden-making everyday living both practical and enjoyable.

A sunny conservatory provides the perfect bonus space - ideal for morning coffee, reading, or simply soaking up the warmth.

The home offers two well-proportioned bedrooms, serviced by a tidy bathroom with a separate toilet for added convenience, along with a separate laundry to enhance functionality.

Outside, you'll appreciate the easy-care grounds, while a single garage provides security and flexibility.

Positioned in a popular Mosgiel location close to local amenities, this is a fantastic opportunity to downsize in comfort and enjoy a relaxed, manageable lifestyle.

Property Details

Inspection Details

Sunday 26th April
1:00pm - 1:30pm
calendar
Monday 27th April
1:00pm - 1:30pm
calendar

Approximate Floor Area
110m2

Rateable Value
$570,000

Property Type
House

You Might Also Like...