4 Perry Street, Warrington

2 BED1 BATH

Web ID: DO12245

Save Property

Negotiable From $495,000

Coastal charm meets modern comfort

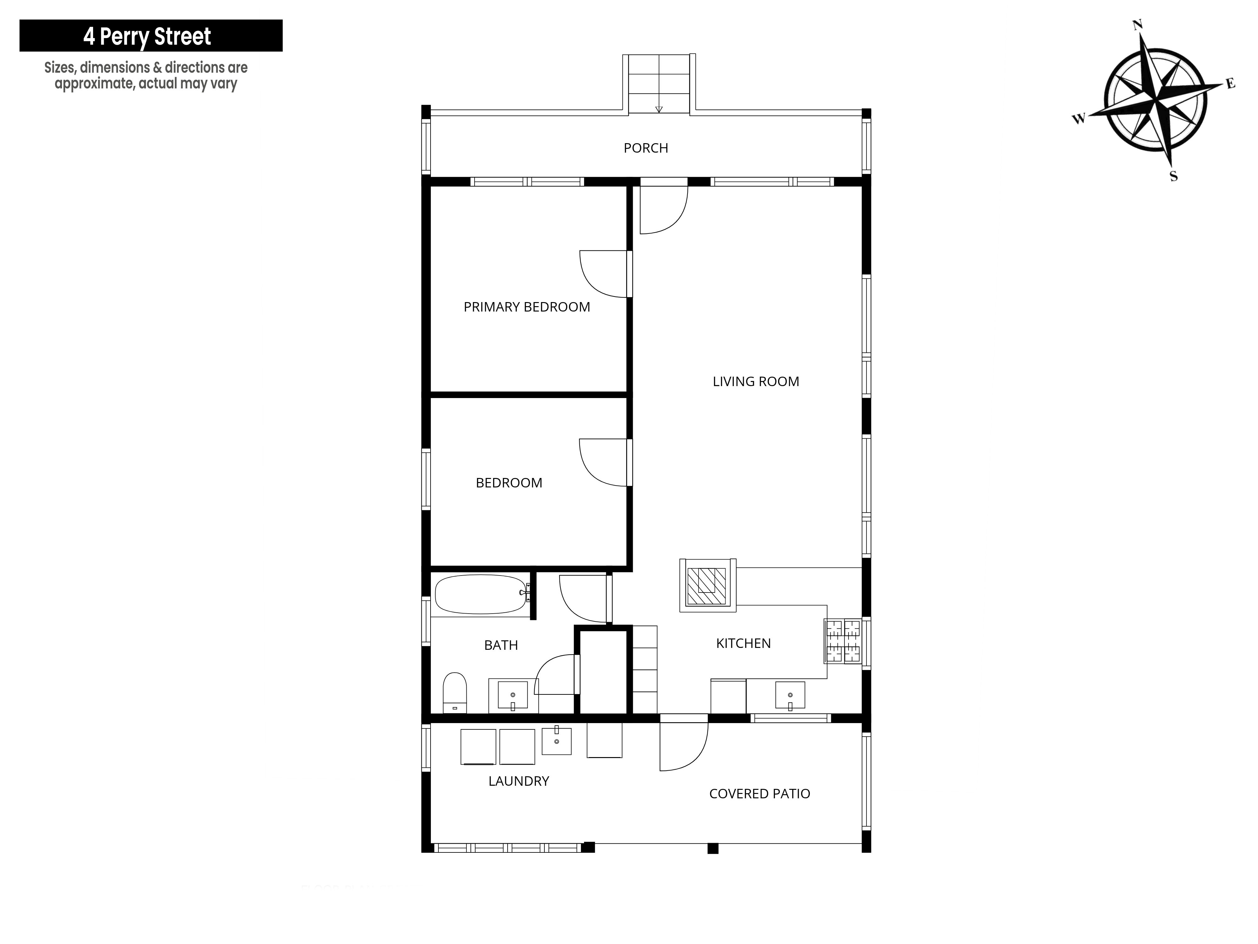
Welcome to 4 Perry Street, Warrington, a beautifully refreshed two-bedroom, one-bathroom home that captures the essence of relaxed coastal living while offering the upgrades and comfort buyers are looking for today.

Positioned to maximise the sun, the home features a north-facing living area and primary bedroom, creating warm, light-filled spaces that feel inviting year-round. Thoughtfully renovated, the property blends a fresh seaside aesthetic with its original character, giving it a unique charm that stands out from the ordinary.

Significant improvements have already been taken care of, including re-piling and double glazing, providing peace of mind, improved insulation, and enhanced comfort through all seasons.

The modern kitchen and bathroom are both stylish and functional, making day-to-day living easy, whether you're here full-time, or using the property as a getaway.

Step outside and you'll find a fully fenced, dog and child-friendly section, designed for relaxed living. Multiple outdoor areas provide the perfect spots to follow the sun-ideal for morning coffees, afternoon drinks, or entertaining friends and family in a private, laid-back setting.

Located just a short stroll to Warrington Beach and Blueskin Bay, you're perfectly positioned to enjoy everything this sought-after coastal community has to offer-surf, walks, and a slower pace of life, all within easy reach of Dunedin.

Key Features:
• Two bedrooms, one bathroom
• North-facing living and primary bedroom
• Re-piled and double glazed for comfort and peace of mind
• Renovated with a light, coastal feel while retaining character
• Modern kitchen and bathroom
• Fully fenced, child and pet-friendly section
• Multiple sunny outdoor living areas
• Easy walk to Warrington Beach and Blueskin Bay

Whether you're searching for a permanent home, a weekend retreat, or a potential short-term accommodation option (Airbnb), this property offers flexibility, lifestyle, and location in equal measure.

Opportunities in Warrington are always popular - secure your slice of the coast today.

Property Details

Inspection Details

Saturday 18th April
1:15pm - 1:45pm
calendar
Sunday 19th April
11:30am - 12:00pm
calendar

Approximate Floor Area
70m2

Approximate Land Area
422m2

Rateable Value
$510,000

Property Type
House

You Might Also Like...