57A Wallace Street, Maori Hill

2 BED1 BATH2 CAR CARPORT

Web ID: MO2088

Save Property

Deadline sale - closing 4pm 18th March 2026

Town Belt On Your Doorstep

This fantastic 1970s home in a prime Maori Hill location offers an exceptional opportunity for buyers looking to secure position and potential. This original property presents huge scope to add value and make it your own in one of Dunedin's most desirable suburbs overlooking Dunedin's town belt.

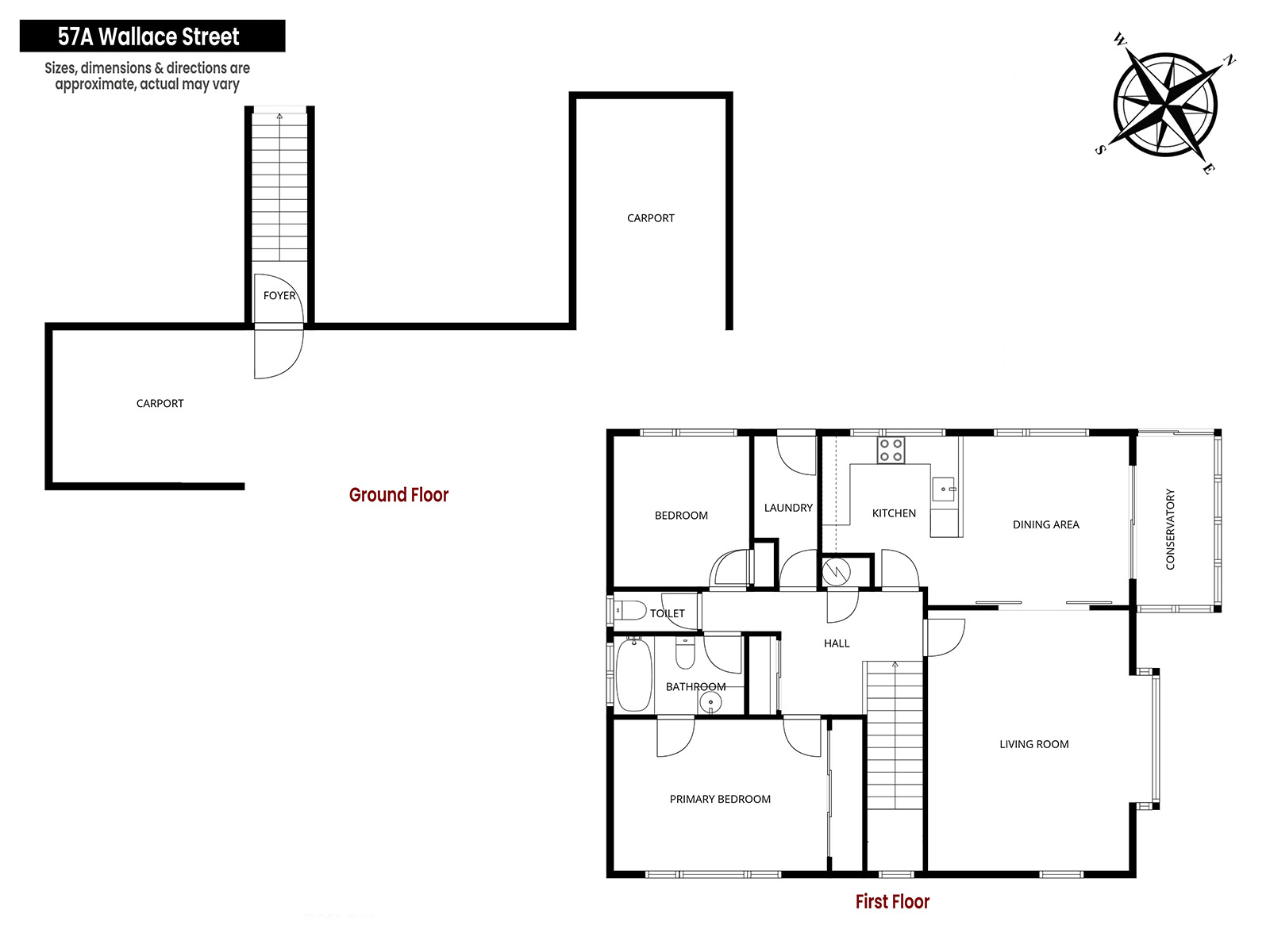
The home offers two bedrooms, an open plan kitchen and dining area that flows beautifully into a sunny conservatory, and a separate living room that provides additional space and flexibility. There is a toilet in the bathroom, plus a separate toilet and separate laundry for practicality, and the easy-care, low-maintenance section means less upkeep and more freedom to focus on the things you truly enjoy.

With two carports plus additional off-street parking, convenience is well covered.

This is truly a location, location opportunity - tightly held, highly sought after, and packed with potential. Homes in Maori Hill are always in demand, and this is your chance to secure a property with great bones in an outstanding position.

Deadline sale closing 4pm Wednesday 18th March 2026 (prior offers considered).

Property Details

Inspection Details

Saturday 14th March
3:00pm - 3:30pm
calendar

Approximate Floor Area
140m2

Rateable Value
$540,000

Property Type
House

You Might Also Like...