65 Dunrobin Street, Waverley

1 BED2 BATH

Web ID: DO12261

Save Property

DEADLINE SALE - CLOSING 12PM 13TH MAY 2026

Two dwellings, endless potential!

Positioned on a prominent corner site in the ever-popular suburb of Waverley, this exceptional 831m2 (+/-) offering, presents a truly rare and versatile opportunity for buyers seeking something beyond the ordinary.

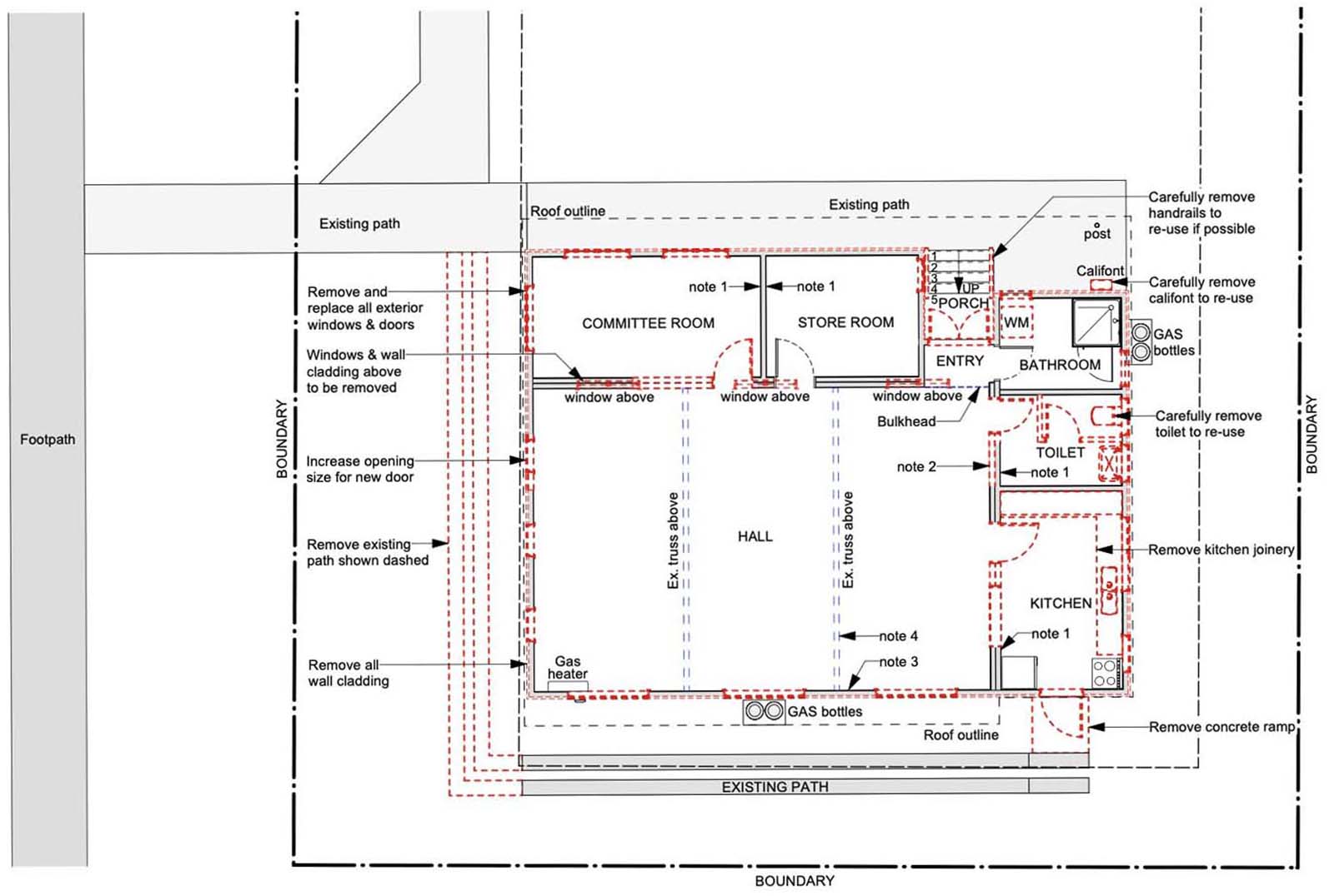
What immediately sets this property apart is the presence of two distinct dwellings, each offering its own potential and purpose. The first is a fully redeveloped hall, thoughtfully transformed into a high-quality 94m2 (+/-) commercial space. Currently operating as an art school, the building has been carefully upgraded to meet modern standards while maintaining a warm and highly functional environment.

Inside, you'll find a well-appointed kitchen, a main bathroom, separate toilet facilities, a dedicated office, a generous open workspace, and ample storage. Comfort and efficiency have been prioritised, with double glazing throughout and a gas califont ensuring reliable hot water. Accessibility has also been well considered, with wheelchair access allowing ease of entry for all. Surrounding the building, established planting and thriving vegetable gardens create a peaceful, productive setting that enhances both the aesthetic and practical appeal of the site.

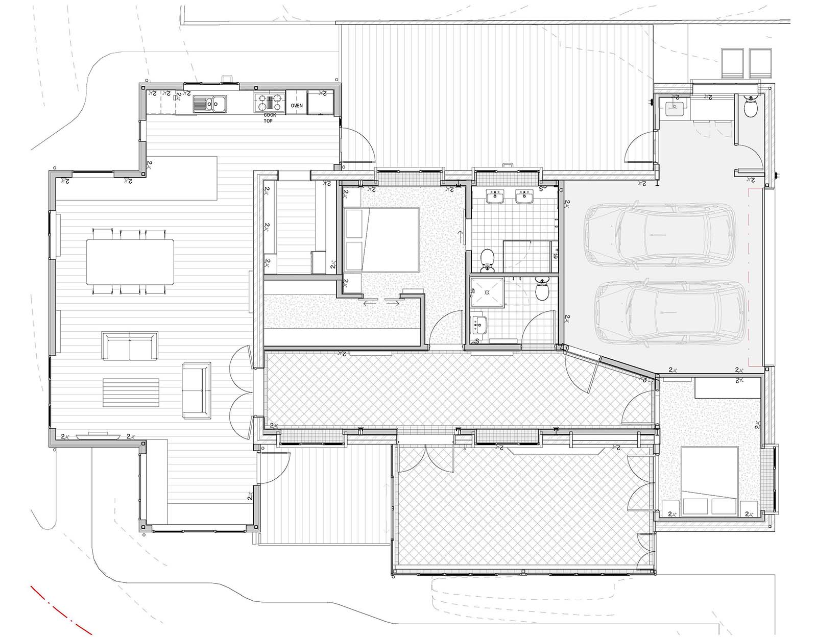
The second dwelling is the original Saint Nicholas Anglican Church, a character-filled structure that remains largely in its original condition. Rich in history and presence, it provides a compelling canvas for those with vision. Importantly, plans are already in place to extensively renovate the existing building into a family home, designed to maximise the elevated position and capture stunning harbour views, an outcome that will truly reward those looking to capitalise on the site's full potential.

This combination of existing income or business potential, alongside future development opportunity, makes the property exceptionally flexible. Whether you're looking to continue the current commercial use, create a home and income setup, or fully realise the site's development potential, the options here are both varied and compelling. Opportunities like this, where location, versatility, and future upside align are increasingly hard to come by in Waverley. This is your chance to secure a site that not only performs today but offers the scope to add real value over time.

Deadline Sale - closing 12noon Wednesday 13th May 2026, at our Dunedin office (prior unconditional offers considered).

Property Details

Inspection Details

Sunday 19th April
1:00pm - 1:30pm
calendar

Approximate Floor Area
240m2

Approximate Land Area
831m2

Rateable Value
$875,000

Property Type
House

You Might Also Like...